Tontit ja toimitilat
Tontit
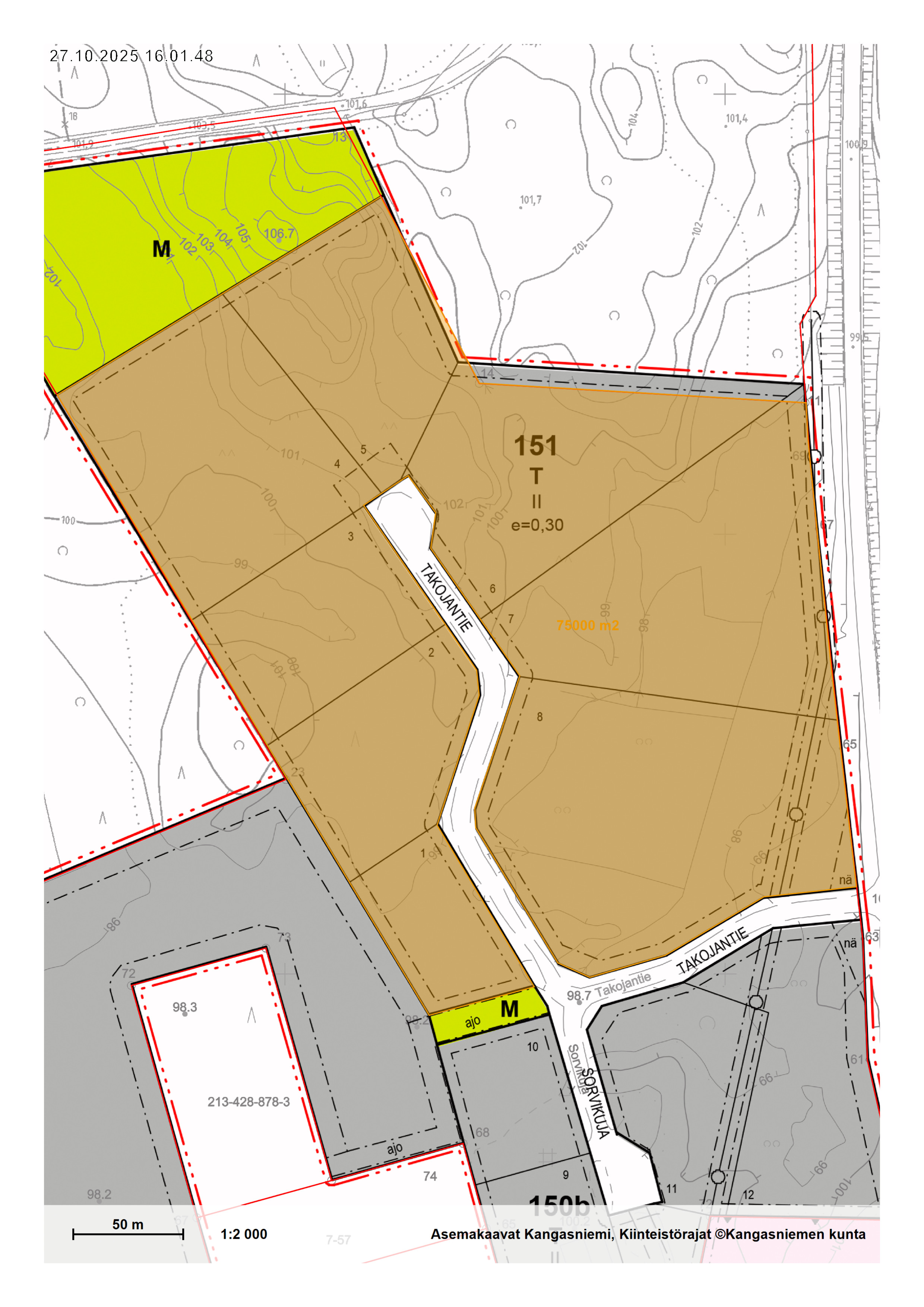
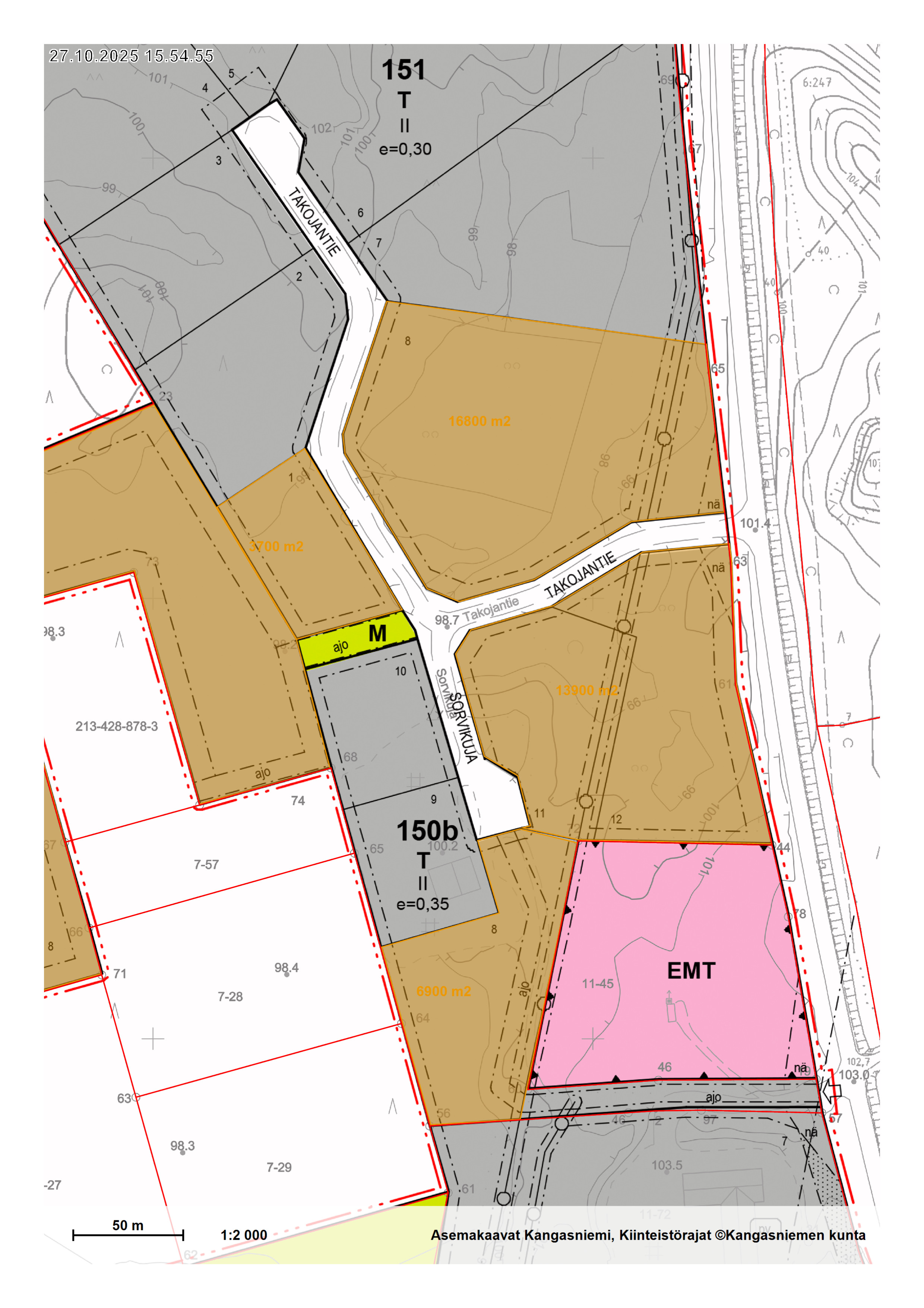
Lapaskankaan teollisuusalue sijaitsee näkyvällä paikalla valtatie 13:n varrella. Alueella toimii noin 30 yritystä, jotka työllistävät yhteensä noin 300 henkilöä. Suurimpia työnantajia ovat LP-Group Kangasniemi Oy, Josadoor Oy, Tehomet Oy ja Rotomon Oy. Lapaskankaalla on edelleen tarjolla hyviä ja edullisia yritystontteja, joita voidaan muodostaa joustavasti yrityksen tarpeiden mukaan.



Teollisuustonttien hinta on 0,3 €/m2. Tonttijako kaavassa on ohjeellinen eli tontti voidaan lohkoa yrityksen tarpeen mukaiseksi. Osalla tonteista ei vielä ole kunnallistekniikkaa, mutta tarvittaessa kunnallistekniikka voidaan rakentaa pikaisestikin. Lisätietoja teollisuustonteista kunnanjohtajalta ja elinvoimakoordinaattorilta, joiden yhteystiedot sivun oikeassa reunassa.
Toimitilat
Myynnissä ja vuokrattavana olevat teollisuus- ja liiketilat löytyvät seudullisesta toimitilarekisteristä. Seudullinen toimitilarekisteri on maksuttomasti kangasniemeläisten yritysten käytössä, jos haluat ostaa, myydä tai vuokrata toimitilaa. Sopivien tilojen etsinnässä auttaa myös kunnan elinvoimakoordinaattori ja niistä tiedotetaan mahdollisuuksien mukaan myös Bisnesniemi-uutiskirjeessä.
Toimitilojen rakentaminen
Kunta voi myös rakentaa toimitilat yritykselle, jos se tuo kuntaan merkittävästi uusia työpaikkoja ja yritys sitoutuu ostamaan toimitilat myöhemmin vuokra- tai lunastussopimuksella, esimerkiksi mallilla 2 + 10 vuotta. Kunta päättää rakentamisesta tapauskohtaisesti. Jos kunta rakentaa tilat yritykselle, ELY-tukea ei voida myöntää kunnalle. Usein yritykselle onkin edullisinta rakentaa tai rakennuttaa omat toimitilat, joihin voi hakea tukea suoraan ELY-keskukselta.